top of page
Create Your First Project
Start adding your projects to your portfolio. Click on "Manage Projects" to get started
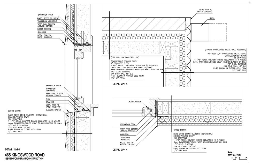
465 Kingswood
This 750 sq.ft. addition to a semi-detatched home provides space for a 3 generations all accomplished on a modest budget & without a trip to the committee of adjustment.














































bottom of page


